Резервуары и металлоконструкции
от завода-производителя

Доставка по всей России!

slide-s02

Стальные силосы и емкости для жидких сред

Стальные силосы и емкости для жидких сред изготавливаются по габаритным характеристикам, необходимым заказчику. Завод резервуаров и негабаритных металлоконструкций (РиНМ) предлагает качественные конструкции, эксплуатируемые в различных отраслях для хранения, переработки жидких сред и сыпучих веществ. Доставка, внедрение, быстрое формирование заказа и качественное исполнение в соответствии с международными стандартами.

 

Сфера применения

 

Хранение на короткие периоды, обработка или передача в системы для дальнейшего использования разнообразных жидкостей или сыпучих веществ подразумевает внедрение особых конструкций. Вертикальная емкость с коническим днищем внизу и верхним любой геометрии размещается на опорах, монтируется на специализированных площадках, оснащается вспомогательным оборудованием. Подобные конструкции с успехом могут применяться в широком диапазоне отраслей:

  • химическая и фармацевтическая промышленности;
  • пищевая отрасль;
  • сельское хозяйство;
  • нефтехимические процессы.

Хранение жесткой и мягкой водной среды, различных растворов, химических веществ неагрессивного характера, а также особые варианты обработки подобных сред могут быть осуществлены при непосредственной эксплуатации силосов. Изготовление осуществляется с учетом норм регламентной документации СП 359.1325800.2017 и других необходимых стандартов. Это позволяет гарантировать безопасную эксплуатацию на отечественных и зарубежных промышленных предприятиях.

 

Размерные характеристики

 

Для того чтобы гарантировать разработку и изготовление качественных емкостей, поставщик ориентируется на некоторые стандарты, применимые к подобным конструкциям:

 

Параметр

Возможные значения

Объемы (м3)

от 5

Возможная температура стенки силоса (°C)

от -40 до +115

Плотность хранимого продукта (кг/м3)

не превышает 900

Материалы корпуса

09Г2С, аналоги

Максимальное число циклов на весь срок эксплуатации

не менее 1000

Диаметры проходных отверстий (мм)

50, 80, 100, 150

 

Конструктивно агрегат может быть дополнен не только опорами, за счет которых обеспечивается устойчивость емкости. В различных ситуациях может потребоваться:

  • трубопроводная обвязка;
  • лестница доступа на верхнюю часть корпуса;
  • площадки обслуживания (наверху, в средней части конструкции);
  • технологические площадки.

В расчет берутся различные показатели места эксплуатации. Особенно важными являются ветровые нагрузки, количество осадков выпадающих за определенные периоды и сейсмическая активность для резервуаров, емкостей располагающихся на открытых площадках. Также поставщик предлагает различные покрытия емкостей, препятствующие воздействию коррозии, продляющие эксплуатационные сроки изделий.

 

Поставка оборудования

 

Завод РиНМ гарантирует высококачественное оборудование для хранения и обработки сыпучих веществ и различных жидких сред, служащее не менее десяти лет при соответствующей грамотной эксплуатации и своевременных мерах по технологическому обслуживанию. Если требуются стальные силосы и емкости для жидких сред определенной конфигурации, из стальных сплавов, надежно функционирующие – лучше всего обратиться к проверенным производителям.

Преимущества

  • Цены от производителя

  • Гарантия качества

  • Комплектация объектов под ключ

  • Производим монтаж/демонтаж

  • Оперативная доставка в любой регион

  • Быстрые сроки поставки,
    четкое соблюдение сроков

  • Персональный подход

  • Гарантийное обслуживание

  • Разработка КМД от 2-х
    рабочих дней

  • Составление КП от 15 минут

Подготовим коммерческое предложение
с учетом ваших индивидуальных технических требований

Скачать опросный лист

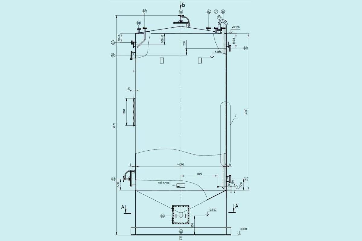
Чертеж

Чертеж Стальные силосы и емкости для жидких сред

Доставка

Чтобы избавить Вас от необходимости поиска логистической компании, мы готовы взять на себя работу по осуществлению доставки оборудования на Ваш объект.

Преимущества осуществления доставки при помощи нашей компании:

  • Работа только с проверенными временем подрядчиками
  • Четкое соблюдение сроков
  • Разумные цены
  • При необходимости, груз можно застраховать
  • Стоимость услуги рассчитывается индивидуально, в зависимости от региона доставки и объема груза.

Свяжитесь с нашим менеджером по телефону или через форму сайта и мы подготовим для Вас расчет.

Скачать опросный лист